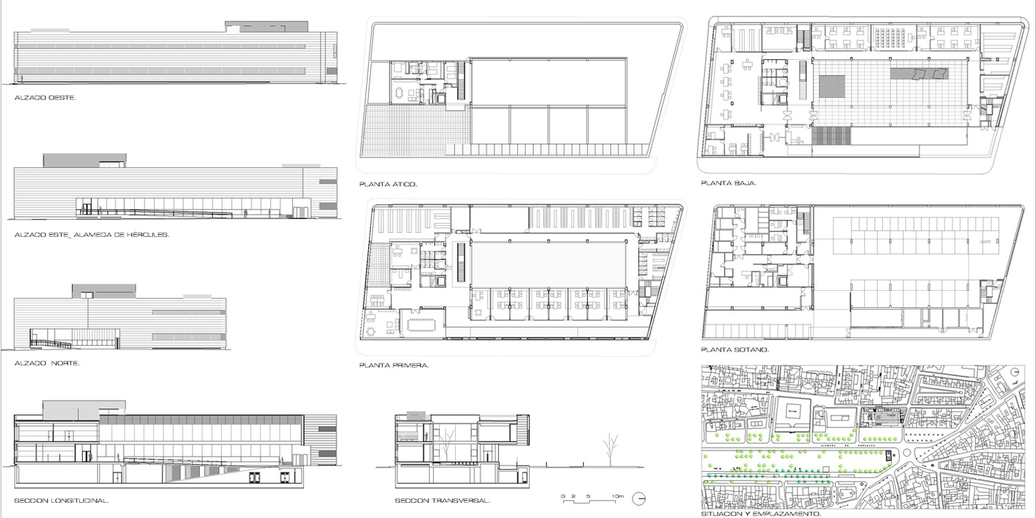
COMISARIA DE POLICÍA NACIONAL DISTRITO CENTRO (ALAMEDA). SEVILLA COMISARIA DE POLICÍA NACIONAL DISTRITO CENTRO (ALAMEDA). SEVILLA COMISARIA DE POLICÍA NACIONAL DISTRITO CENTRO (ALAMEDA). SEVILLA COMISARIA DE POLICÍA NACIONAL DISTRITO CENTRO (ALAMEDA). SEVILLA COMISARIA DE POLICÍA NACIONAL DISTRITO CENTRO (ALAMEDA). SEVILLA COMISARIA DE POLICÍA NACIONAL DISTRITO CENTRO (ALAMEDA). SEVILLA COMISARIA DE POLICÍA NACIONAL DISTRITO CENTRO (ALAMEDA). SEVILLA COMISARIA DE POLICÍA NACIONAL DISTRITO CENTRO (ALAMEDA). SEVILLA COMISARIA DE POLICÍA NACIONAL DISTRITO CENTRO (ALAMEDA). SEVILLA DOCENTES EDIFICIOS PÚBLICOS MOBILIARIO REHABILITACIONES VIVIENDAS Comisaría de Policía Nacional. San Fernando. Cádiz Edificio Administrativo Bermejales. Sevilla ComisarÍa de Policía Nacional Distrito Centro (Alameda). Sevilla Instalaciones e Infraestructuras Policiales Cortijo de Cuarto. Sevilla Unidad de Policía Adscrita de Andalucía. Sevilla Contenedores de Obra. Ruedos de Consolación. Utrera. Sevilla Capitanía en Sancti Petri. Chiclana. Cádiz